$2,290,000
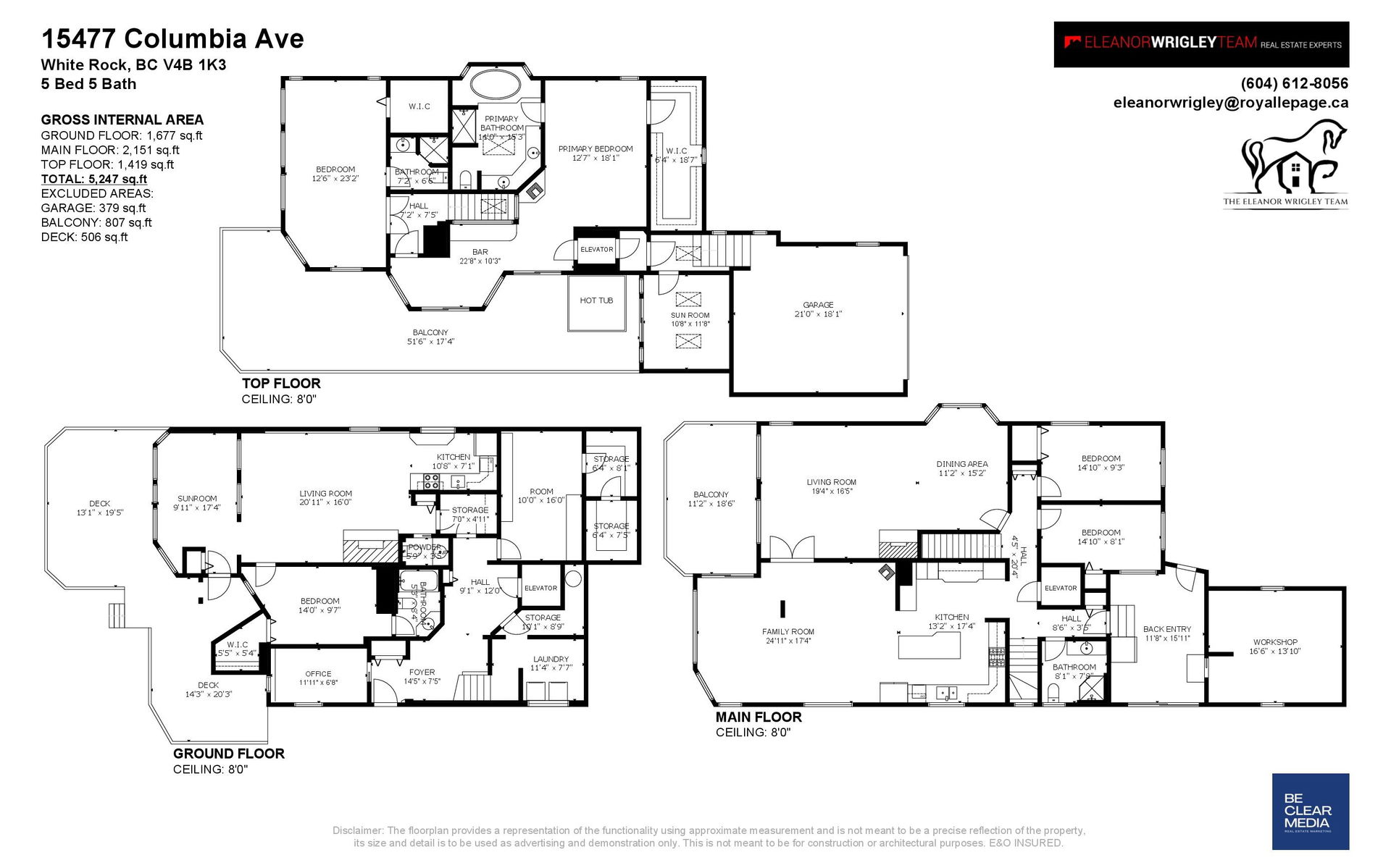
15477 Columbia Avenue
Sold
More information
Features & amenities
- Elevator
- Workshop Attached
- Golf Course Dev.
- Lane Access
- Marina Nearby
- Private Setting
- Private Yard
- Shopping Nearby
Additional details
- MLS® # R2899617
- Type House
- Subtype House/Single Family
Listing is presented by
Welcome to the Eleanor Wrigley Team
Royal LePage - Wolstencroft